Villa singola in vendita

Gorgonzola, Via Pavia
€ 630.000
5 locali 5 locali
260 Mq 260 Mq
2 bagni 2 bagni

Villa singola in vendita

Gorgonzola, Via Pavia

Descrizione annuncio

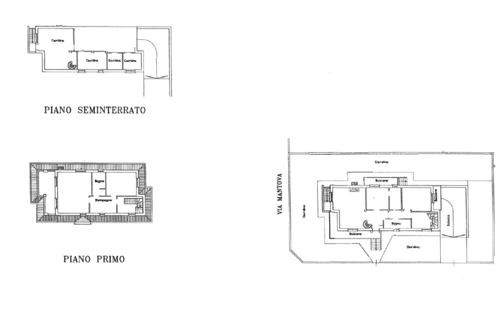
In una tranquilla zona residenziale nelle vicinanze della metropolitana di Cascina Antonietta proponiamo in vendita una villa singola libera su quattro lati, circondata da un ampio giardino privato che garantisce riservatezza, luminosità e piacevoli spazi da vivere all’aperto. L’ingresso al piano terra conduce a un ampio e accogliente soggiorno con camino. La zona giorno prosegue con una cucina abitabile affiancata da un comodo tinello, perfetto per i pasti quotidiani. Sullo stesso piano troviamo inoltre una camera matrimoniale con accesso al balcone e un bagno recentemente ristrutturato, rifinito con gusto e funzionalità. Dal soggiorno partono due scale che collegano gli altri livelli della casa: una suggestiva scala a chiocciola conduce alla taverna, uno spazio versatile ideale come zona hobby o area relax, dove sono presenti anche la cantina, la lavanderia e l’accesso diretto al box di 40 mq; sempre dal soggiorno, una comoda scala porta al piano superiore dedicato alla zona notte. Al primo piano si trovano due camere da letto, una delle quali di ampie dimensioni con la possibilità di ricavare una terza camera. Da questa stanza si accede direttamente a un piacevole terrazzo loggiato. Completa il piano un secondo bagno anch’esso ristrutturato.

Mostra tutto

Nelle vicinanze

Trasporto pubblico Trasporto pubblico
Cascina Antonietta
Cascina Antonietta
480 m
stazione di Gessate
stazione di Gessate
1,3 Km
Cascina Antonietta M2
Cascina Antonietta M2
510 m
Trasporto pubblico
1,2 Km
Scuole Scuole
Scuole
970 m
Argentia e Marconi
1,2 Km
Scuola Elementare
1,8 Km
Scuola Materna Stefano Lattuada
1,9 Km
Scuola Secondaria Cesare Beccaria
1,9 Km
Farmacia Farmacia
Farmacia Donati
1,5 Km
Farmacia Comunale
1,6 Km
Farmacia
1,9 Km
Farmacia Mauri
2,1 Km
Ospedali Ospedali
Ospedale Serbelloni - Gorgonzola
890 m
Supermercati Supermercati
Carrefour Market
1,2 Km
Coop
1,4 Km
Esselunga
1,6 Km
Famila
2,3 Km
Lidl
2,3 Km
Negozi Negozi
il focaccione
1,4 Km
Metamorfosi moda
1,9 Km
Il Fornaio
1,9 Km
Fornaio Bordogna
2,3 Km
Punto Giallo
2,4 Km
Bar Bar
Barino
1,2 Km
Bar Anna
1,2 Km
Diamond
1,3 Km
Bar
1,4 Km
Bar Crosina
1,6 Km
Ristoranti Ristoranti
Trattoria il cavallino bianco
180 m
Zuma a Lenga
1,2 Km
Due Fratelli
1,2 Km
Pizzeria Benvenuti al Sud
1,5 Km
Pizzeria Capitan Uncino
1,8 Km
Mostra tutto

Caratteristiche

Rif.:
61188206
Piano:
Su più livelli di 2
Totale piani:
2
Box:
1
Balconi:
2
Terrazzi:
1
Mostra tutto
Prezzo Prezzo
€ 630.000
Rata mutuo Rata mutuo
€ 3.005 / mese
Proponi il tuo prezzoProponi il tuo prezzo

Classe Energetica

E
E
E
E
E
E
E
E
E
EP invernale del fabbricato:
EP estiva del fabbricato:
Anno di costruzione:
1980
Riscaldamento:
Autonomo
Tipo impianto:
A radiatori
Tipo alimentazione:
Metano

Ti interessa visionare l'immobile?

Fissa un appuntamento  Fissa un appuntamento

Richiedi informazioni

Clicca su Leggi per aprire l'informativa
* Questi campi sono obbligatori

Calcola il tuo mutuo

Semplice e senza impegno
Anticipo

( % )
Mutuo

( % )

pochi semplici passi

inserisci i tuoi dati
Questionario completato
Grazie per aver richiesto un appuntamento senza impegno con un nostro Consulente del Credito e Assicurativo.

Hai inserito correttamente tutti i dati necessari e a breve riceverai una e-mail con un link da convalidare per inviare i tuoi dati.
Affiliato
Studio Gorgonzola Srl
P.zza Italia, 50 20064 Gorgonzola (MI)

Il nostro staff


  • Fabio Livraghi
    Affiliato

  • Riccardo De Martino
    Affiliato

  • Laura Arioli
    Coordinatrice

  • Raffaello Rossi
    Collaboratore
P.zza Italia, 50 20064 Gorgonzola (MI)
Zona: Gorgonzola
Mostra su mappa
Orari: dal lunedì al venerdì 9.00 - 12.30 / 14.30 - 20.00 sabato chiusura ore 18.00
Affiliato
Studio Gorgonzola Srl
P.zza Italia, 50 20064 Gorgonzola (MI)

2026 Tecnocasa Franchising S.p.A. - P. IVA 08365160152 - Via Monte Bianco 60/A 20089 Rozzano (MI). Ogni agenzia ha un proprio titolare ed è autonoma. Privacy policy | Policy utilizzo | Cookie policy